|

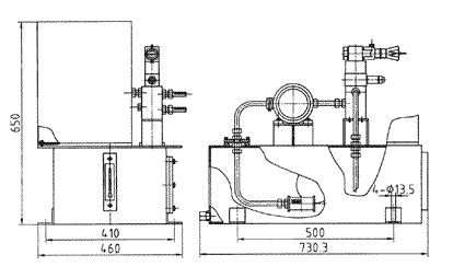
锚定装置是在起重机处于设计停车位置,通过操纵液压系统,控制液压油缸的活塞杆的运动,将锚定销插入码头的锚孔内,而使起重机实现固定的一种安全装置。油缸上带有行程开关,与行走机构的电气联锁,可防止误操作。锚定销安装在行走车架的指定位置。锚定销的尺寸取决于码头的锚孔,可现场设计液压站
型号及主要参数
| 型号 |
液压站类型 |
工作压力MPa |
油箱容积L |
泵流量L/min |
油缸直径mm |
电机功率KW |
| LMD1 |
板式叠加阀式 |
2.5
|
50
|
4
|
Æ80 |
0.25 |
| LMD2 |
板式叠加阀式 |
5
|
50
|
5
|
Æ63 |
0.5 |
| LMD3 |
集成阀式 |
30
|
16
|
4
|
Æ63 |
1.5 |
|